vertical space

upload testing

Aurora, Colorado
Innovation Takes Shape at Fitzsimons

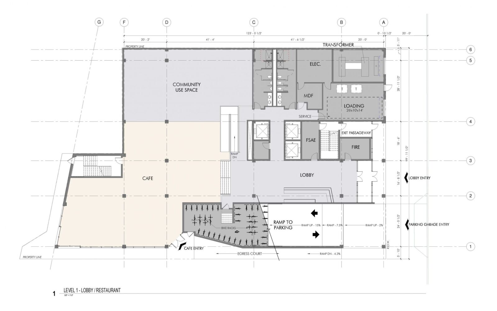
This speculative laboratory facility anchors a growing national hub for bioscience and biotechnology innovation. Located on the Fitzsimons Innovation Campus in Aurora, the building is home to both private biotechnology companies and advanced research efforts from the University of Colorado Denver’s Bioengineering Department. MOA ARCHITECTURE designed the building’s core and shell, along with tenant improvement services for nearly all occupants, helping shape one of the fastest-growing biotech ecosystems in the country.

Size

115,000 SF

Scope

  • Renovation
  • New Construction
A Flexible Research Hub Built for Innovation

Designed for flexibility, adaptability, and collaboration, the building supports a diverse range of research and development tenants. The layout optimizes both workflow and functionality, with clearly separated circulation paths for people and equipment, as well as widened corridors to accommodate large-scale lab equipment. A variety of meeting spaces, including a distance learning–enabled training center, foster connection and knowledge sharing. On the exterior, vibrant fiber cement panels, sleek metal cladding, and steel sunshades bring energy and identity to the tilt-up concrete structure, while enhancing energy performance through passive solar control.

Advancing Colorado’s Bioscience Future

This facility plays a pivotal role in positioning the Denver metro region as a national leader in bioscience and biotech innovation. By providing flexible, high-performance lab space within a strategically located, research-rich environment, the building accelerates collaboration between academia and industry. Its forward-thinking design supports the rapid growth of the Fitzsimons Innovation Campus and reflects the ambition and momentum of Colorado’s bioscience sector.

RTA logo

COLORADO OFFICE
414 14th St. Suite 300
Denver, CO 80202
(303) 308-1190

 

WYOMING OFFICE
259 South Center St. Suite 206
Casper, WY 82601
(307) 268-9890